Texas bariyer sistemleri, hem şehir içi hem de otoyol güvenliğinde en çok tercih edilen çözümlerden biridir. Sağlam yapısı ve uzun ömürlü kullanım avantajı sayesinde inşaat alanlarından otoyollara kadar geniş bir kullanım alanı vardır.
Texas Bariyer Nedir?
Texas bariyer, beton veya çelikten üretilen güvenlik elemanıdır. Özellikle araç trafiğinin yoğun olduğu bölgelerde kullanılır. Araç çarpışmalarını minimuma indirmeyi amaçlar. Yüksek dayanıklılığı sayesinde kazaların etkisini azaltır.
Texas Bariyerin Özellikleri
- Betonarme ya da çelik malzemeden üretilir.
- Uzun ömürlüdür ve bakım gerektirmez.
- Farklı ölçülerde üretilebilir.
- Modüler yapısı sayesinde kolayca monte edilir.
- Hava koşullarına karşı yüksek direnç sağlar.

Texas Bariyerin Kullanım Alanları
Texas bariyerler birçok alanda kullanılabilir. Özellikle şu bölgelerde tercih edilir:
- Otoyollar ve şehirlerarası yollar
- Şantiyeler ve inşaat alanları
- Askeri tesisler ve güvenlik bölgeleri
- Havalimanı çevreleri
- Endüstriyel tesis girişleri
Bu alanlarda bariyerler hem güvenliği artırır hem de düzeni sağlar.
Texas Bariyerin Avantajları
Texas bariyer kullanmanın birçok avantajı vardır. En önemli faydaları şunlardır:
- Yüksek güvenlik sağlar.
- Uzun yıllar dayanıklıdır.
- Trafik kazalarında can kaybını azaltır.
- Düşük bakım maliyetine sahiptir.
- Kolay kurulum imkanı sunar.
Texas Bariyer Ölçüleri ve Modelleri
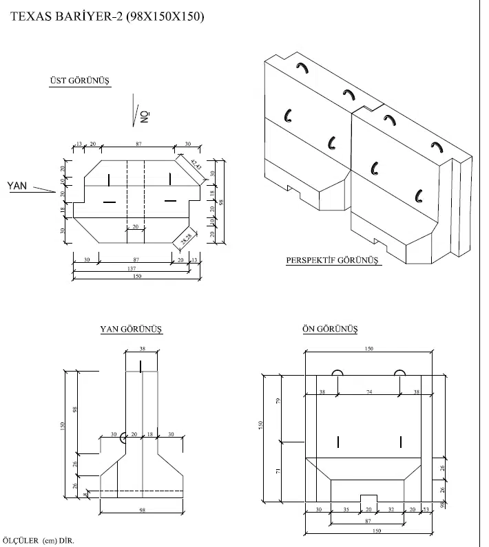
Üreticiler, farklı proje ihtiyaçlarına uygun ölçüler sunar. 150 cm veya 150x150x98 cm gibi standart ölçüler yaygındır. Ancak özel sipariş ile farklı ebatlarda da üretilebilir. Ayrıca bağlantı aparatları sayesinde seri halde kullanılabilir.
Neden Texas Bariyer Tercih Edilmeli?
Texas bariyer tercih etmenin en büyük nedeni güvenliktir. Araç çarpışmalarında darbeyi absorbe ederek ölümcül sonuçları engeller. Ayrıca uzun süreli kullanım için ekstra maliyet çıkarmaz. Bu da projeler için ekonomik bir çözüm sunar.
Texas Bariyer Fiyatları
Fiyatlar, ölçülere ve kullanılan malzemeye göre değişir. Beton bariyerler genellikle daha ekonomik seçenek sunar. Çelik bariyerler ise özel güvenlik alanlarında tercih edilir. Proje bazlı toplu alımlarda maliyet avantajı sağlanır.
